Apartments on Canarien Islands on sale

  • Deal Type
  • For Sell
  • Тype
  • Apartment
  • Area
  • 61 m2
  • Floors
  • -
  • Rooms
  • 2
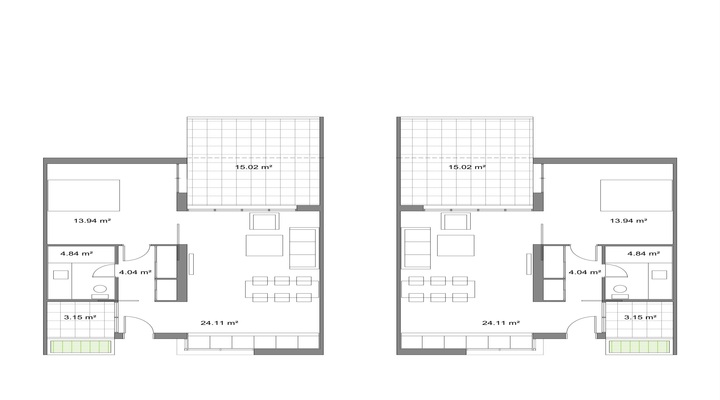
Luxury apartment with one bedroom is still under construction and is still available for purchase !! Located in the prestigious Casilla de Costa. Incredible opportunity not to be missed !! Spacious and elegant apartment with 1 bedroom and 1 bathroom upstairs and a total area of 61 square meters. Entering the luxury property, there is a huge open space of 24 sqm which comprises living, dining room and kitchen. 
The living room leads to the large private terrace with beautiful views over the tropical gardens and the swimming pool through a couple of oversized glass doors. These modern apartments have a utility room and will be built according to the highest standards. The spectacular apartments Casillla de Costa is really a great investment and the best properties of Fuertvenetura!
Measures:
Living / dining / kitchen 24.11 sq.m.
Terrace 02.15 sq.m.
Roof 28.75 sq.m.
Bathroom 4.84 sq.m.
Bedroom 13.94 sq.m.
Storeroom 03.15 sq.m.
Total area 61.06 sq.m.

For more information please contact. There are other solutions available on sale.
  • Location:
Country:Spain
State:Canarias
City:La Oliva
Property Type:Apartment
  • Characteristics
Rooms:2
Living Area (m2):61

105 000 €

123 416 $
9 808 030 ₽

On the map

Other properties of this seller